
Preencha os campos abaixo para submeter seu pedido de música:

Já estão em andamento as obras para a construção do mega data center da big tech chinesa ByteDance, empresa controladora do TikTok, nas imediações do Porto do Pecém, no Ceará. O empreendimento é o pontapé do complexo de cinco data centers, com investimentos de mais de R$ 580 bilhões, de acordo com o Ministério do Desenvolvimento e da Indústria.
Com capacidade inicial de 200 MW de processamento, o data center em construção agora será o maior individual (de um único cliente) do Brasil e também será o primeiro voltado para a exportação – os dados processados aqui serão referentes a usuários de outros países.
De acordo com a Omnia, empresa brasileira responsável pela construção da estrutura, as obras tiveram início em 6 de janeiro e encontram-se em um estágio de preparação do terreno, incluindo manejo de vegetação e serviços iniciais de terraplanagem.
A previsão da empresa é que o primeiro data hall – a sala do data center onde estão reunidos os processadores, o ‘cérebro’ do negócio – deve estar em operação e ser entregue à ByteDace em setembro de 2027.
O empreendimento está sendo construído no perímetro da Zona de Processamento de Exportação (ZPE) do Ceará, uma área que concentra indústrias de exportação e recebe benefícios fiscais e alfandegários. A ZPE está localizada no limite entre os municípios de São Gonçalo do Amarante e Caucaia, com a instalação do data center ocorrendo neste último.
📍Zonas de Processamento de Exportação (ZPE) são áreas voltadas para a indústria e para exportação, com incentivos fiscais e regulações diferenciadas para atrair empresas; atualmente, existem quatro ZPEs no Brasil, incluindo a do Pecém, no Ceará.
Além da estrutura do data center, devem ser construídos um parque eólico para abastecimento de energia e uma rede de transmissão de alta tensão. Na edificação do complexo estão envolvidas três empresas:
A previsão do Ministério do Desenvolvimento e da Indústria é que, para erguer o complexo de data centers, sejam investidos mais de R$ 580 bilhões no local, entre a construção e equipagem do data center, as obras de infraestrutura e a abertura de novos parques de energia renovável.
A obra recebeu uma licença prévia de instalação das autoridades ambientais do Ceará ao ser considerado um empreendimento de baixo impacto, mas o Ministério Público Federal (MPF) solicitou em novembro de 2025 uma perícia para analisar se seria necessário um estudo de impacto ambiental mais robusto.
A perícia já foi concluída, no entanto, os resultados ainda não foram divulgados. Questionada pelo g1 se as empresas envolvidas tinham resolvido o imbróglio junto ao MPF, a Omnia respondeu que “reafirma seu compromisso com a responsabilidade ambiental, cumprindo rigorosamente todos os protocolos e exigências previstos no processo de licenciamento ambiental para a continuidade do empreendimento”.
O Ceará é o terceiro estado em quantidade de data centers e em capacidade instalada, com 13 data centers em operação, atrás apenas de São Paulo (82) e Rio de Janeiro (28), segundo a Associação Brasileira de Data Centers (ABDC).
Data centers regulares têm capacidade total de 10 a 30 MW. Em outubro de 2025, a empresa brasileira Tecto inaugurou na Praia do Futuro, em Fortaleza, o maior data center do Nordeste, com uma potência total de 20 MW, iniciando operação com 4 MW de potência de TI.
LEIA TAMBÉM:
O “data center do TikTok” prevê dois prédios principais, somando 200 MW de potência de TI, superando toda a capacidade instalada no Ceará atualmente. A potência total chega a 300 MW, considerando o consumo dos outros maquinários do prédio. A energia é suficiente para abastecer uma cidade de cerca de meio milhão de habitantes.
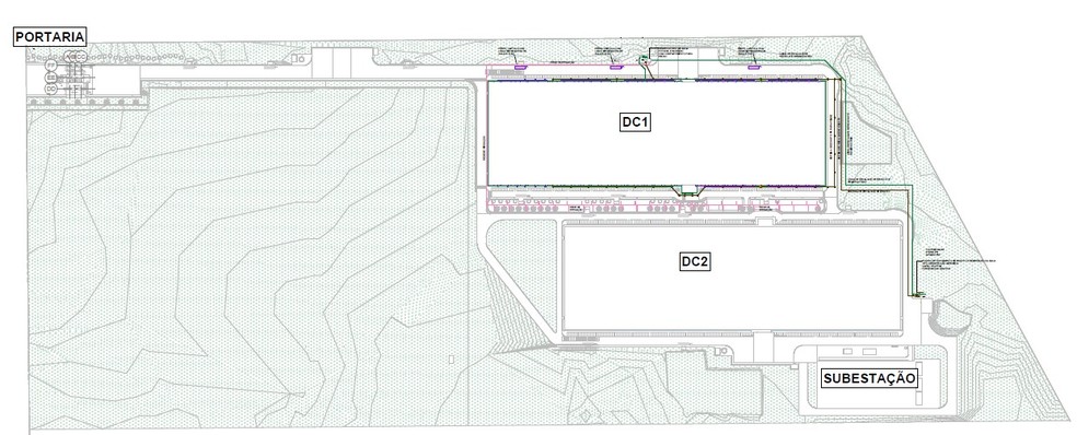
O projeto de estrutura do prédio, ao qual o g1 teve acesso, inclui os dois galpões principais, uma subestação própria de energia, reservatório de água e de combustíveis, uma guarita e uma extensa área de jardim que deve ser utilizada para novas construções em caso de futuras ampliações. Confira:
/i.s3.glbimg.com/v1/AUTH_59edd422c0c84a879bd37670ae4f538a/internal_photos/bs/2025/G/w/d9O2jbSjm7a59CpnUXfQ/data-center-.jpg)
Planta do data center com investimentos da ByteDance (TikTok), no Pecém (CE), tem dois prédios principais com processadores, uma subestação de energia e espaço para ampliação — Foto: Reprodução
Apesar de ter ficado conhecido como data center do TikTok, o projeto será construído pelas empresas brasileiras Casa dos Ventos e Omnia, que vão “alugar” a estrutura para a ByteDance.
O mega data center deve ser exclusivo para exportação, processando dados para usuários de fora do país. Ele será instalado na ZPE do Pecém, entre Caucaia e São Gonçalo do Amarante, na Região Metropolitana de Fortaleza.
O equipamento vai ocupar uma área de cerca de 68 hectares (ou 95 campos de futebol), às margens da CE-348, no território do município de Caucaia, a cerca de 2 quilômetros da Lagoa do Cauípe, importante corpo hídrico da região.
/i.s3.glbimg.com/v1/AUTH_59edd422c0c84a879bd37670ae4f538a/internal_photos/bs/2025/V/B/rsAqArTJa2Ua1lBCwe6g/data-center-pecem.jpg)
Novo data center das empresas Omnia e Casa dos Ventos vai receber investimento da ByteDance, controladora do TikTok — Foto: g1 CE
Segundo a Omnia, o projeto vai utilizar o chamado sistema de refrigeração em ciclo fechado, no qual a água utilizada absorve o calor das máquinas e depois, em contato com ar, ela mesma é resfriada e volta novamente a passar pelas máquinas para absorver mais calor.
Segundo a empresa, o modelo fechado “possibilita um baixíssimo consumo de água 30m³, equivalente a cerca de 70 residências médias”, ou o correspondente a apenas 0,045% da demanda residencial total do município de Caucaia. A Omnia disse que a maior parte do consumo de água será para uso humano e predial, e “apenas cerca de 10% desse total utilizado para a refrigeração”.
O Conselho Nacional das ZPEs (CZPE) já concedeu ao projeto os benefícios fiscais usualmente concedidos às empresas exportadoras instaladas em ZPEs. O conselho estima que, em operação, o data center vai gerar 550 empregos diretos e indiretos. Nas obras de infraestrutura, 3.800.
O sinal verde do CZPE veio com algumas condicionantes: todo data center instalado em uma ZPE, como o do TikTok, é obrigado a utilizar energias renováveis. As empresas devem construir um novo parque eólico e uma rede de transmissão de alta tensão, atividades especializadas da Casa dos Ventos.
/i.s3.glbimg.com/v1/AUTH_59edd422c0c84a879bd37670ae4f538a/internal_photos/bs/2025/X/z/T9fSLjRb6TVehZTmfiog/thiago-gadelha.jpg)
Data centers instalados em áreas de ZPE são obrigados a usar energias renováveis — Foto: Thiago Gadelha/SVM
Pelas suas dimensões, o data center gerou controvérsia entre ambientalistas, órgãos de fiscalização e comunidades indígenas do povo Anacé, que vivem nas proximidades e reivindicam a área como território indígena.
Um dos pontos levantados é que o projeto recebeu uma licença prévia da Superintendência Estadual do Meio Ambiente (Semace) apresentando um estudo ambiental simplificado, o mesmo que é exigido de obras de pequeno e médio porte.
Além disso, há preocupações sobre os níveis de consumo de água da estrutura – e de onde essa água vai ser retirada. Os Anacé temem que o modelo de resfriamento exija grandes volumes de água e que esta seja retirada da Lagoa do Cauípe, principal corpo hídrico da região.
Por Leonardo Igor de Sousa, g1 CE